ALSO INTERESTING
Heidelberg Materials’ declaration of love to concrete
Corporate headquarters as reinforced concrete skeleton structure
published on 6. June 2024, 10:30
by Tim Kullmann
Heidelberg Materials is one of the world's largest manufacturers of building materials. With the construction of a new corporate headquarters, the DAX-listed company from Heidelberg has demonstrated that their remarkable range of concrete offers attractive building materials. The consulting engineers from Wulle Lichti Walz GmbH were responsible for the structural analysis and design of the impressive building and provide insights into their work, which also involved the use of FRILO and Allplan.
- When selecting the materials, Heidelberg Materials was particularly keen to showcase the versatile and aesthetic application possibilities of concrete as a building material.
- Architectural and structural highlights are the three free-standing tree columns of reinforced concrete with a height of eleven metres each that transfer the loads from the storeys above.
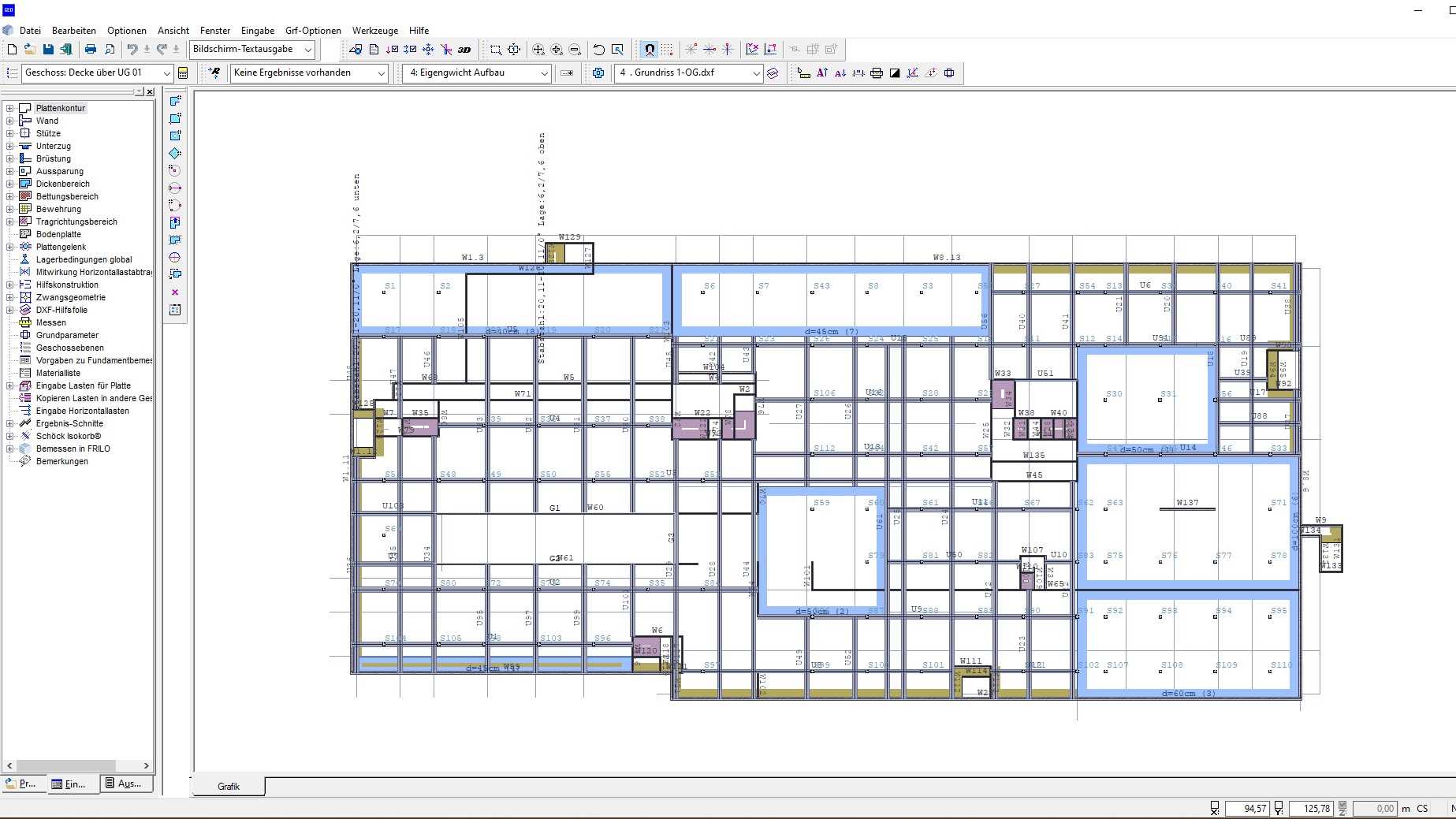
- To determine the load transfer for the entire building, the structural engineers used the GEO building model program by FRILO.
- All in all, ten structural engineers drew almost 3,600 reinforcement and 2,000 formwork plans in Allplan.
For a long time, the employees of Heidelberg Materials were spread across various office buildings in the Heidelberg city area. To put an end to this situation and bring the entire workforce together at a common hub, the Group built new, impressive corporate headquarters in the Neuenheim district of Heidelberg. The new state-of-the-art building, which was ready for occupation after three years of construction in June 2020 as planned, offers space for up to 1,000 employees. In the design and erection, however, Heidelberg Materials not only placed importance on sufficient space for its workforce, but also on an innovative and energy-efficient building concept. The certification of the building according to the “Platinum” standard of the German Sustainable Building Council establishes evidence of the environmentally friendly and sustainable design.
Showcasing concrete as a building material
The building complex covers a gross floor area of 51,975.60 m². It is composed of three cube-shaped building parts of different heights, which are interwoven and merge into one unit. The corporate headquarters with seven floors above ground and two underground floors are designed as a reinforced concrete skeleton structure with reinforced concrete circular columns and bracing wall cores. The integral structure, which only has joints at the two ends of the bridges on the 1st and 2nd floors, offers a total of 182,418.20 m³ of enclosed space. In addition to the generously designed interior, separate, lavishly landscaped inner courtyards, and the company’s own canteen (the casino) contribute to a comfortable and communicative working environment. When selecting the materials, the DAX-listed company was particularly keen to showcase the versatile and aesthetic application possibilities of concrete as a building material. The guiding principle in the design and planning was that the new headquarters should reflect the company and its products.
Façade and tree columns are highlights
The curved façade gives a first striking impression. The mixture of abundant glass and white precast concrete components conveys inviting transparency. This impressive appearance is further supported by the entrance area. The self-compacting fine exposed concrete of the highest classification SB 4, which was used for the partially filigree and densely reinforced exposed concrete components (walls, columns, ceilings), radiates harmony, elegance, and lightness. Architectural and structural highlights are the three free-standing tree columns of reinforced concrete with a height of eleven metres each that transfer the loads from the storeys above. The special construction, as slender as it is complex, owes its name to its outer shape, which resembles that of a tree.
Load transfer via the building model by FRILO
In the framework of the building design, the consulting engineers from Wulle Lichti Walz GmbH were responsible for the structural supervision of the construction work. To determine the load transfer for the entire building, the structural engineers used the structural analysis software FRILO. They modelled the building in the GEO building model program with the aid of DXF foils. “The GEO was a great help because it provides the user with a quick overview of the vertical load transfer, especially with complex building structures,” says Dipl.-Ing. Oliver Lichti, who placed vertical columns in the building model that differed from the actual shape of the inclined tree columns in order to create a support point and simulate the transfer of the loads. “Once the information is in the GEO, changes can be made easily. With special connection solutions, the details can then be worked out,” adds the structural engineer.
Component design on the upper floor
After determining the load transfer in the structural analysis software, the building model was divided at the floor slab above the basement in order to process the two basement floors and the seven upper floors separately during the structural component design. The structural analysis of the slabs was performed after the transfer from the building model to the FRILO program Slabs by Finite Elements PLT. For the design of the reinforced concrete beams, the program Continuous Beam DLT was used.
Especially for the calculation of the floor slab above the casino with its latticed configuration of downstand beams, which spans an area of 34.65 x 14 metres without supports, both programs were a great help. To form the sharp edges, 64 custom-made hollow sections with slightly conical edges were placed on the formwork, which could be removed downwards when stripping the formwork. The program Reinforced Concrete Column B5+ was used for the verification of uniaxially and biaxially loaded reinforced concrete columns and walls. For the spatial calculation of the tree columns, the responsible engineers used a framework program.
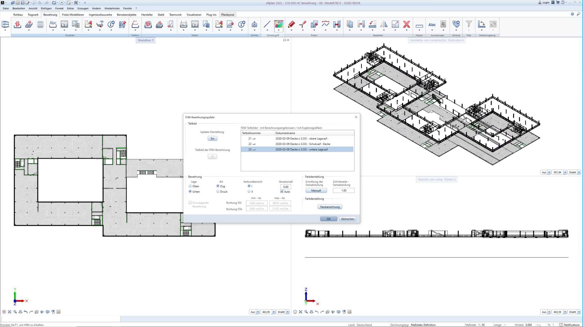
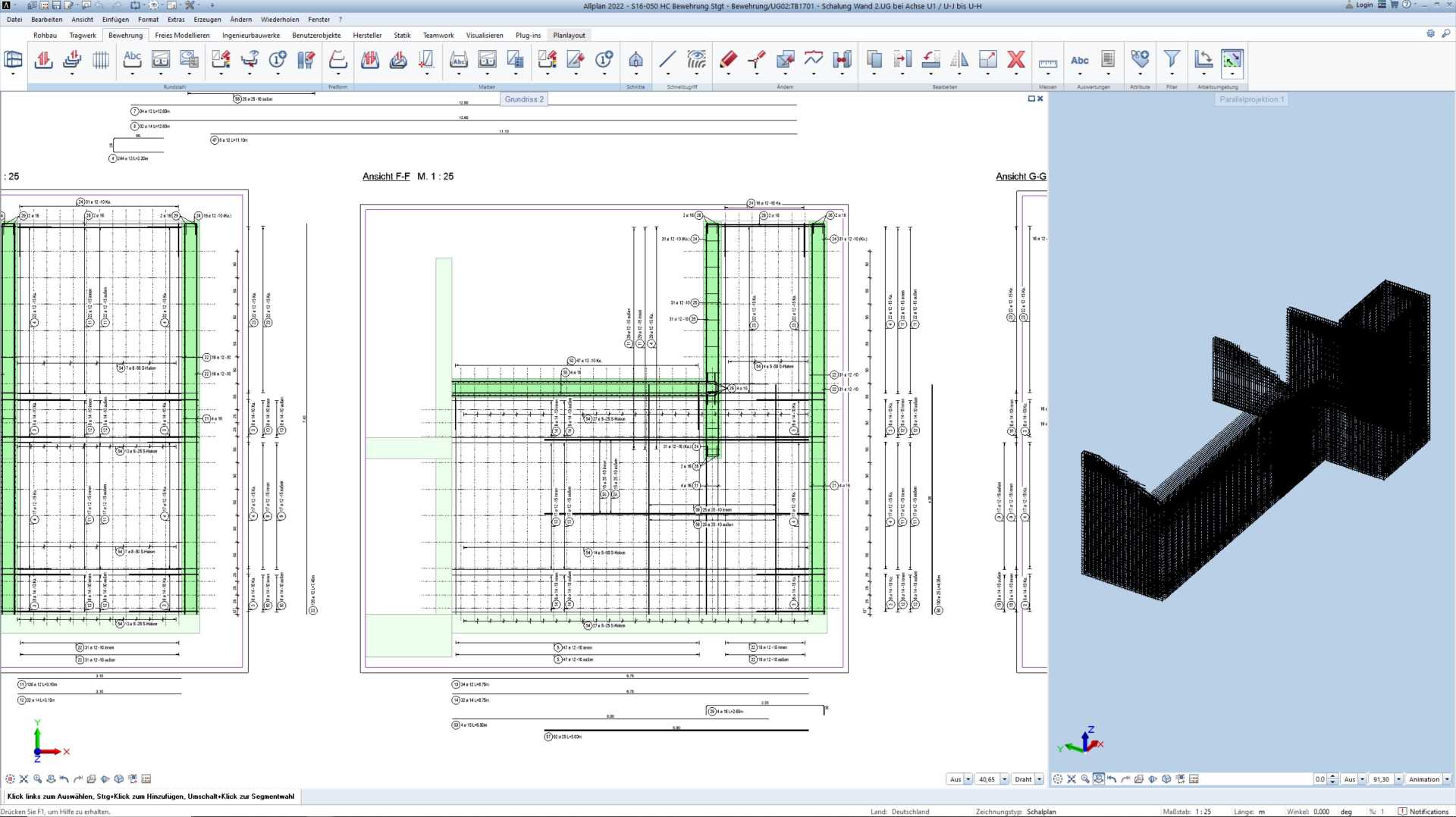
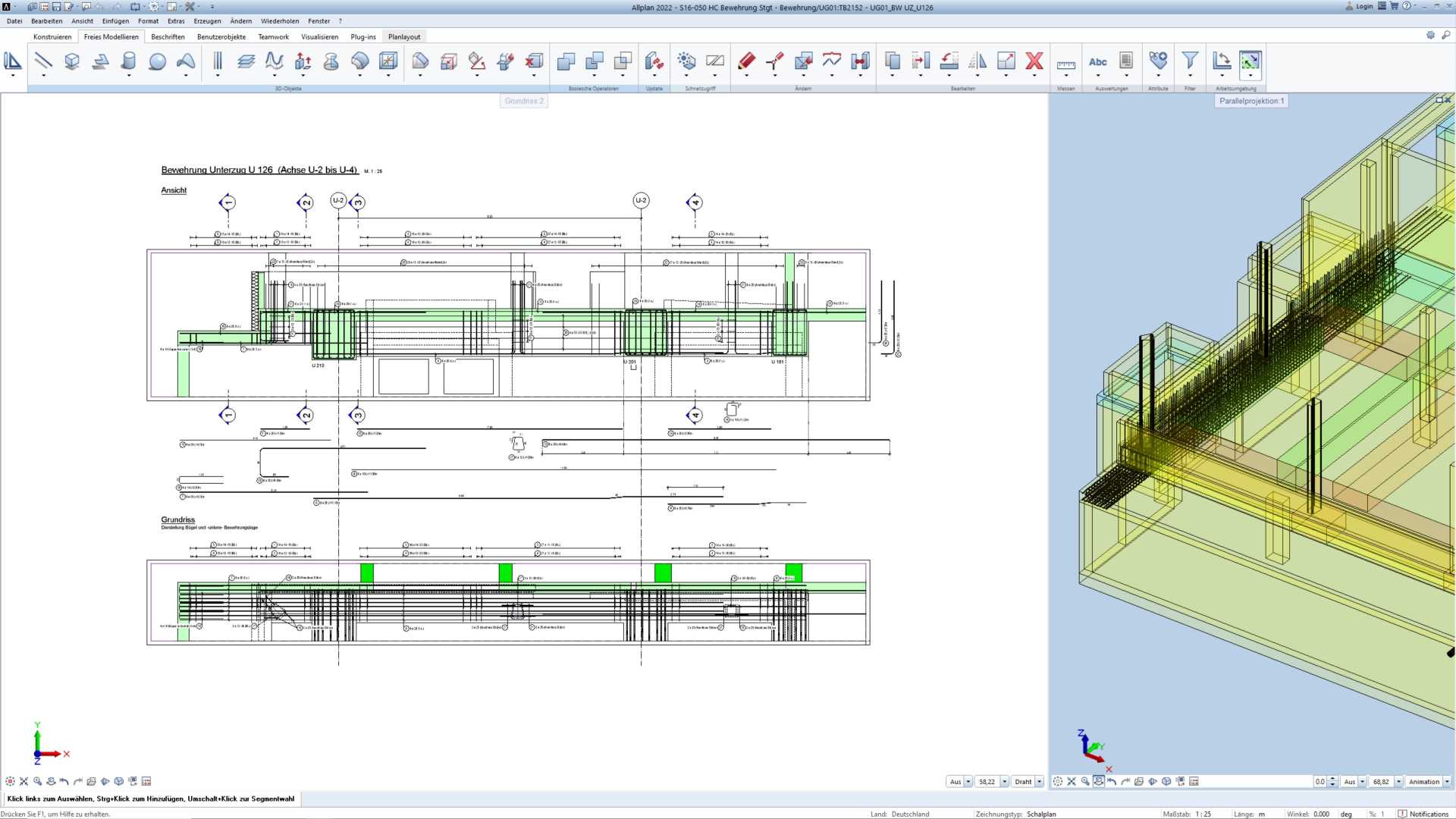
Formwork and reinforcement planning with Allplan
While the structural engineers created a verifiable structural analysis in FRILO, the draughtsmen in the Mosbach office created a detailed 3D model of the Heidelberg Materials headquarters in the BIM software Allplan. Based on the FE calculations carried out in PLT, the structural engineers then generated an ASF file and transferred this to the 3D model in Allplan as support for fast and precise drawing of reinforcement plans. All in all, ten structural engineers drew almost 3,600 reinforcement and 2,000 formwork plans in Allplan. “We drew 185 reinforcement plans just to insert the reinforcement in the floor slab. These are huge dimensions, which our office had never dealt with before, especially in view of the tight schedule,” Lichti admitted.
System change in the basement
As typical for projects involving an underground car park, a system change was made for the slab above the basement. The slab that rests on the basement has a thickness of 50 to 100 cm and absorbs the loads of the upper floors via a beam grid. The beams are so densely reinforced that they could not be cast together with the slab. Four layers of diameter 32 were laid in the floor slab in the basement floors. Because of the roadway in the underground car park, neither beams nor columns could be provided in the basement in the area of the tree columns in the foyer. Consequently, a lying steel grate Europilz® of almost twenty-two tonnes and supplementary HALFEN shear reinforcement was installed in the floor slab above the basement underneath each of the three tree columns.
For the tree columns on the ground floor, the self-compacting C50/60 concrete was pumped into the columns from below with the help of welded-in baffles and pressed upwards into the formwork eleven metres high. “In terms of concrete technology and structural stability, this procedure was a real challenge. It is unbelievable what actually can be done when dealing with concrete,” enthused Lichti, who will always remember his decisive involvement in the new construction of the Heidelberg Materials Group headquarters.











